Gmünder Straße 2
73540 Heubach
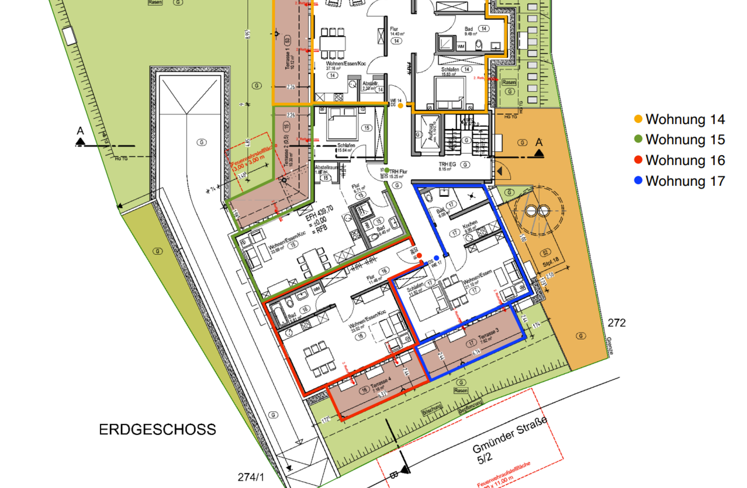
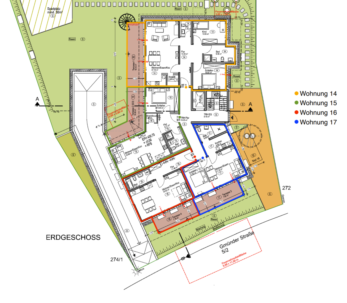
HERZSTÜCK 14 - EG
Objekt ID:
3636251
Lage:
73527 Schwäbisch Gmünd
Objektart:
Erdgeschosswohnung
Wohnfläche:
106,04 m2
Zimmer:
3
Kaltmiete
0 €
Objektbeschreibung
WOHNUNG #14 - EGHelle Wohnung mit großer Terrasse, moderne Ausstattung mit Fußbodenheizung, Holzoptikböden, bodengleichen Duschen, elektrischen Rollläden.
Hoher Energiestandard für geringe Nebenkosten. Barrierearm mit Aufzug – ideal für alle Altersgruppen. Tiefgaragenstellplatz verfügbar (70 €/Monat).
*** SOFORT ONLINE BESICHTIGEN***
Lage
Ausstattung
Haustiere sind leider nicht gewünscht.Die Wohnungen werden ohne Einbauküche angeboten.
Dennoch halten wir Lösungen für Sie bereit - bitte sprechen Sie uns an.
Sonstiges
Wir bitten um Verständnis, dass wir unserem Auftraggeber gegenüber verpflichtet sind nachzuweisen, wem wir nähere Auskünfte zur Immobilie erteilen. Deshalb bitten wir bei Interesse um vollständige Angabe Ihrer Kontaktadresse mit Namen, Anschrift, Telefonnummer und Email. Vielen Dank.Eckdaten
| Baujahr | 2025 |
| Verfügbar ab | sofort |
| Objektart | Erdgeschosswohnung |
| Objektzustand | Erstbezug |
| Zimmeranzahl | 3 |
| Schlafzimmer | 1 |
| Badezimmer | 1 |
| Wohnfläche | 106,04 m2 |
Energieausweis
| Energieausweis | liegt vor |
| Energieausweistyp | Bedarfsausweis |
| Energieeffizienzklasse | B |
| Energiekennwert | 59.2 kWh/m2a |
| Heizungsart | Fußbodenheizung |
| Wesentlicher Energieträger | Holzpellets |








